Rif: IMMO-123323709
PIGRA
COMO
Nel suggestivo borgo di Pigra, a pochi km dal lago di Como, proponiamo in vendita una splendida villa in posizione panoramica unica, con vista spettacolare su lago (Como, Lecco, Bellagio) e montagne.
Costruita negli anni '90, la proprietà offre ampi spazi interni ideali per accogliere famiglie numerose o ospiti, grande luminosità e un'atmosfera di tranquillità e natura.
La villa è attualmente suddivisa in due eleganti appartamenti indipendenti, ciascuno con ingresso autonomo, facilmente unificabili in un'unica abitazione o frazionabili ulteriormente in più unità, offrendo così molteplici soluzioni abitative e d'investimento.
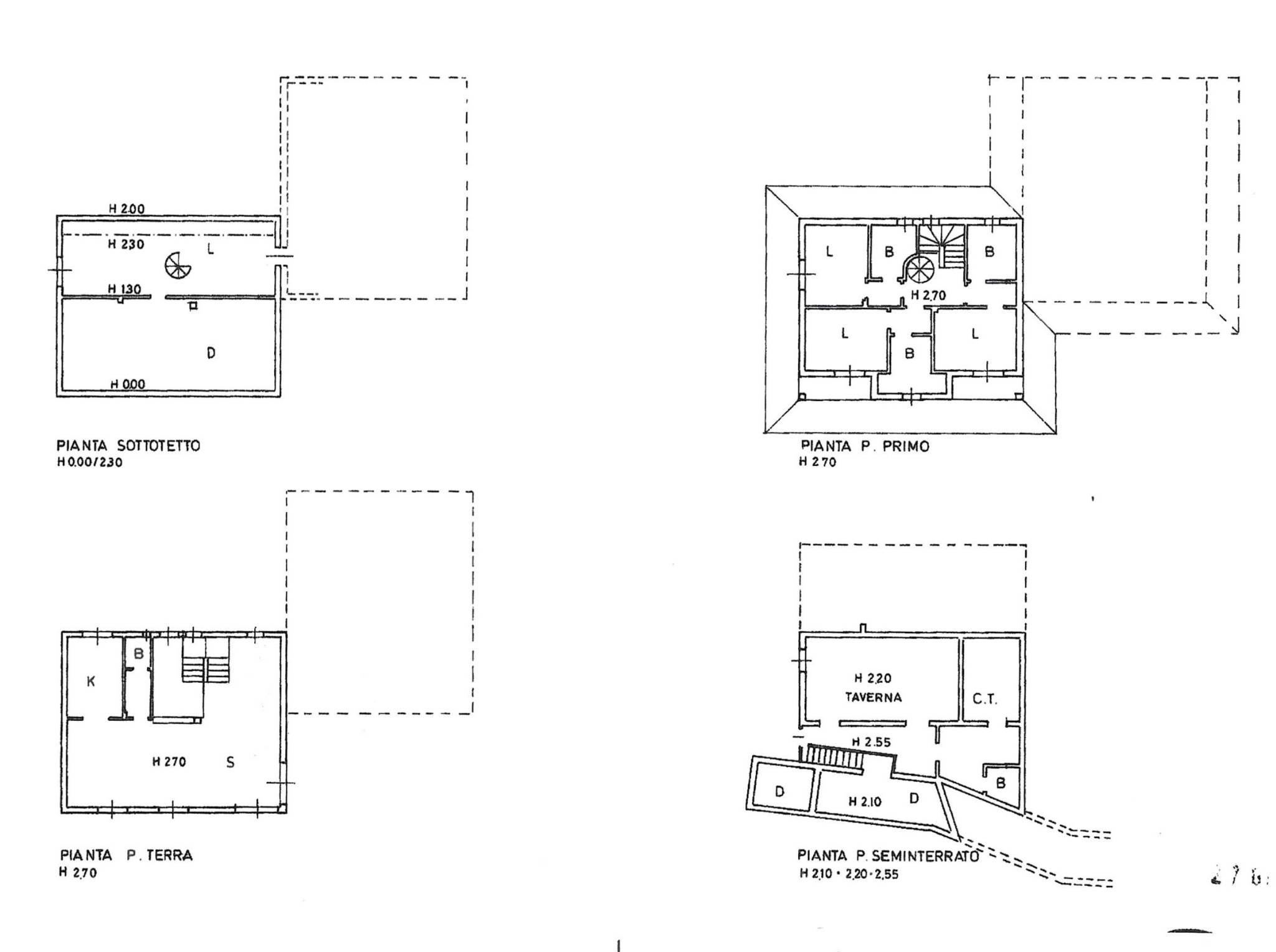
Composizione:
• Piano terra: luminosa zona living con accesso diretto al giardino, terrazza panoramica;
• Piano primo: zona notte con ampie camere da letto, bagni e balconi vista lago;
• Secondo piano: ampio sottotetto con potenzialità di personalizzazione;
• Piano primo sotto strada: taverna con bagno di servizio, sauna e vani tecnici con installazione nel 2021 di caldaie Buderus.
All'esterno, la proprietà è completamente circondata da un terreno recintato, arricchito dalla presenza di una sorgente naturale privata, ideale per creare un'area relax.
Soluzione perfetta come abitazione principale, casa vacanza, ma anche un ottimo investimento per attività ricettive come B&B o casa per affitti turistici.
Pigra è una meta amata dagli appassionati di sport e natura: trekking, mountain bike, escursioni con ciaspole e molto altro che rendono questo borgo un punto di riferimento per chi desidera vivere il Lago di Como in modo autentico.
Posizione strategica:
Pigra – Lago di Como
85 km da Milano e Malpensa
36 km da Como
33 km da Lugano
Un'opportunità unica per vivere o investire in uno dei borghi più panoramici del Lago di Como!
Le immagini, le planimetrie, le informazioni e i dati qui riportati sono indicativi, con finalità esclusivamente illustrative e commerciali, pertanto non costituiscono in alcun modo presupposto contrattuale
Contatti per informazioni e visite:
Stima Servizi Immobiliari
Tel. +39 02 76024322 Cell. +39 335 7031419
Costruita negli anni '90, la proprietà offre ampi spazi interni ideali per accogliere famiglie numerose o ospiti, grande luminosità e un'atmosfera di tranquillità e natura.
La villa è attualmente suddivisa in due eleganti appartamenti indipendenti, ciascuno con ingresso autonomo, facilmente unificabili in un'unica abitazione o frazionabili ulteriormente in più unità, offrendo così molteplici soluzioni abitative e d'investimento.
Composizione:
• Piano terra: luminosa zona living con accesso diretto al giardino, terrazza panoramica;
• Piano primo: zona notte con ampie camere da letto, bagni e balconi vista lago;
• Secondo piano: ampio sottotetto con potenzialità di personalizzazione;
• Piano primo sotto strada: taverna con bagno di servizio, sauna e vani tecnici con installazione nel 2021 di caldaie Buderus.
All'esterno, la proprietà è completamente circondata da un terreno recintato, arricchito dalla presenza di una sorgente naturale privata, ideale per creare un'area relax.
Soluzione perfetta come abitazione principale, casa vacanza, ma anche un ottimo investimento per attività ricettive come B&B o casa per affitti turistici.
Pigra è una meta amata dagli appassionati di sport e natura: trekking, mountain bike, escursioni con ciaspole e molto altro che rendono questo borgo un punto di riferimento per chi desidera vivere il Lago di Como in modo autentico.
Posizione strategica:
Pigra – Lago di Como
85 km da Milano e Malpensa
36 km da Como
33 km da Lugano
Un'opportunità unica per vivere o investire in uno dei borghi più panoramici del Lago di Como!
Le immagini, le planimetrie, le informazioni e i dati qui riportati sono indicativi, con finalità esclusivamente illustrative e commerciali, pertanto non costituiscono in alcun modo presupposto contrattuale
Contatti per informazioni e visite:
Stima Servizi Immobiliari
Tel. +39 02 76024322 Cell. +39 335 7031419
Consistenze
| Descrizione | Superficie | Sup. comm. |
|---|---|---|
| Principali | ||
| Immobile - 1° piano | 530 Mq | 530 Mqc |
| Totale | 530 Mqc | |
